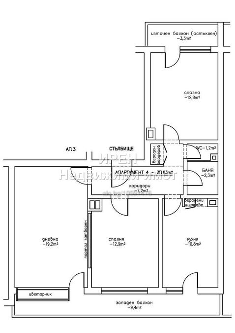
Продава се Тристаен апартамент на етаж 2 -ри от 5 в идеален център в близост до училище, магазини и автобусна спирка.
🏠 Площ:
- 93 кв.м. по заснемане (без общи части)
- 78,20 кв.м. по документи
- Мазе - 18,20 кв.м. (светло)
- Таван - 10,80 кв.м. (светъл)
Разпределение:
- Просторна дневна
- Две спални
- Кухня с вградени шкафове
- Два санитарни възела (баня и тоалетна отделни)
- Два балкона (единият остъклен)
- Коридор с вграден гардероб
Характеристики:
- Частично обзаведен
- Изложение: изток - запад
- Подови настилки: естествен паркет в стаите, балатум в кухнята, мозайка в коридора и санитарните помещения
- Стени - тапети
- Дървена дограма
Тухлена сграда, газифициран блок


























